

Appartement à louer 1 chambre à Luxembourg-Kirchberg
- Type : Appartement
- Chambre : 1
- Salle de douche : 1
- Surface habitable : +/-72 m2
- Etage : 1
- Loyer : 1 980 €
- Provision sur charges : 300 €
- Dépôt de garantie : 3 960 €
- Meublé : Oui
- Honoraires d'agence : 2316 €
- Année de construction : 2012
- Disponibilité : 15/12/2025
Classe énergétique
B
Classe d'isolation thermique
B
Description
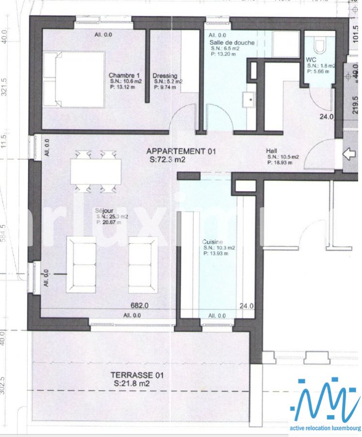
"active relocation luxembourg" vous propose en location un appartement entièrement meublé et équipé de 72m² dans la petite Résidence ''Vienna'', située dans une rue calme à Kirchberg.Comprenant: un hall d'entrée avec placard, un WC séparé, une salle de douche, 1 chambre à coucher avec lit double, une cuisine équipée semi-ouverte sur le grand living avec accès terrasse de 21m²,
Au sous-sol: une grande cave privative, une buanderie avec machine à laver et sèche-linge et un emplacement de parking intérieur complètent ce bien.
arrêts de bus à 100m et 600m
Restaurant dans les allentours
Auchan Hypermarché Kirchberg et ses commerces, Kinepolis, les différentes banques et les institutions européennes se trouvent à 2km
Adresse:
1, rue des Maraîchers,
L-2124 Luxembourg
Disponible à partir de mi-décembre à convenir
Loyer: 1.980€
Charges: 300€
Part commission d'agence à charge du locataire : 990 euros + TVA 17% = 1.158,30 euros
Si vous pensez vendre ou louer votre bien, active relocation luxembourg est à votre service pour vous conseiller au mieux et vous faire profiter de toutes ses compétences en vue de commercialiser votre bien de manière professionnelle et rapide.
+ 352 270 485 005
info@arlux.lu
www.arluximmo.lu
Caractéristiques
Intérieur
Salon20.67 m2
CuisineOui
Cuisine ouverteOui
Nb de parking interne1
Sanitaires
Salle de douche1
Toilette séparée1
Extérieur
Terrasse21.8 m²
Exposition SudOui
Voiture
GarageOui
Autres
AscenseurOui
CaveOui
BuanderieOui
Chauffage / climatisation
ChauffageOui
Chauffage au gazOui